U0171-LOST COMMUNICATION W/UP-FRONT RIGHT SATELLITE ACCELERATION SENSOR





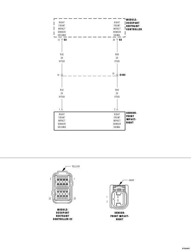
For a complete wiring diagram Refer to Section 8W.


  • When Monitored:

    The Occupant Restraint Controller (ORC) continuously communicates with the Front Right Impact Sensor over the sensor signal circuit. The sensor communication and on board diagnostics are powered by the ORC signal.

  • Set Condition:

    This code will set, if the ORC and the Front Right Impact Sensor do not establish and maintain valid data communications.


Possible Causes
 
(R80) SIGNAL CIRCUIT SHORTED TO BATTERY
 
(R80) SIGNAL CIRCUIT SHORTED TO GROUND
 
(R80), (R82) FRONT RIGHT IMPACT SENSOR CIRCUITS SHORTED TOGETHER
 
(R82) FRONT RIGHT IMPACT SENSOR GROUND CIRCUIT OPEN
 
(R80) FRONT RIGHT IMPACT SENSOR SIGNAL CIRCUIT OPEN
 
ORC, FRONT RIGHT IMPACT SENSOR
 




Diagnostic Test

1.VERIFY THAT DTC U0171-LOST COMMUNICATION W/UP-FRONT RIGHT SATELLITE ACCELERATION SENSOR IS ACTIVE

NOTE: Ensure the battery is fully charged.


NOTE: When reconnecting Airbag system components, the ignition must be turned off and the battery must be disconnected.





Does the scan tool display active: U0171-LOST COMMUNICATION W/UP-FRONT RIGHT SATELLITE ACCELERATION SENSOR?

Yes
  • Go To 2


No
  • Go To 9

2.CHECK THE (R80), (R82) FRONT RIGHT IMPACT SENSOR SIGNAL AND GROUND CIRCUITS FOR A SHORT TO BATTERY



WARNING: To avoid personal injury or death, turn the ignition off, disconnect the battery and wait two minutes before proceeding.




WARNING: To avoid personal injury or death, turn the ignition on, then reconnect the battery.




Is there any voltage present?

Yes
  • Repair the (R80), (R82) Front Right Impact Sensor circuits for a short to battery.
  • Perform the *ORC VERIFICATION TEST - VER 1.


No
  • Go To 3

3.CHECK THE (R80) FRONT RIGHT IMPACT SENSOR SIGNAL CIRCUIT FOR A SHORT TO GROUND



WARNING: To avoid personal injury or death, turn ignition on, then reconnect the battery.




Is the resistance below 100K ohms?

Yes
  • Repair the (R80) Front Right Impact Sensor Signal circuit for a short to ground.
  • Perform the *ORC VERIFICATION TEST - VER 1.


No
  • Go To 4

4.CHECK THE (R80), (R82) FRONT RIGHT IMPACT SENSOR CIRCUITS FOR A SHORT TOGETHER





Is the resistance below 100K ohms?

Yes
  • Repair the (R80), (R82) Front Right Impact Sensor circuits shorted together.
  • Perform the *ORC VERIFICATION TEST - VER 1.


No
  • Go To 5

5.CHECK THE (R82) FRONT RIGHT IMPACT SENSOR GROUND CIRCUIT FOR AN OPEN OR HIGH RESISTANCE






Is the resistance below 1 ohm?

Yes
  • Go To 6


No
  • Repair the (R82) Front Right Impact Sensor 2 Ground circuit for an open or high resistance.
  • Perform the *ORC VERIFICATION TEST - VER 1.

6.CHECK THE (R80) FRONT RIGHT IMPACT SENSOR CIRCUIT FOR AN OPEN OR HIGH RESISTANCE





Is the resistance below 1 ohm?

Yes
  • Go To 7


No
  • Repair the (R80) Front Right Impact Sensor Signal circuit for an open or high resistance.
  • Perform the *ORC VERIFICATION TEST - VER 1.

7.CHECK OPERATION OF THE FRONT RIGHT IMPACT SENSOR




WARNING: To avoid personal injury or death, turn the ignition on, then reconnect the battery.







Did the active Front Right Impact Sensor DTC return?

Yes
  • Go To 8


No
  • Repair is complete.
  • Perform the *ORC VERIFICATION TEST - VER 1.

8.REPLACE THE OCCUPANT RESTRAINT CONTROLLER

WARNING: To avoid personal injury or death, turn the ignition off, disconnect the battery and wait two minutes before proceeding.


WARNING: If the airbag control module is dropped at any time, it must be replaced. Failure to take the proper precautions can result in accidental airbag deployment and personal injury or death.



View repair

Repair
  • Replace the Occupant Restraint Controller in accordance with Service Instructions.
  • Perform the *ORC VERIFICATION TEST - VER 1.

9.TEST FOR AN INTERMITTENT CONDITION



WARNING: To avoid personal injury or death, turn the ignition off, disconnect the battery and wait two minutes before proceeding.






WARNING: To avoid personal injury or death, turn the ignition on, then reconnect the battery.



WARNING: To avoid personal injury or death, maintain a safe distance from all airbags while performing the following steps.







Are any ACTIVE DTCs present?

Yes
  • Select the appropriate symptom from Symptom List.


No
  • No problem found at this time. Erase all codes before returning vehicle to customer.