P0141-O2 SENSOR 1/2 HEATER PERFORMANCE





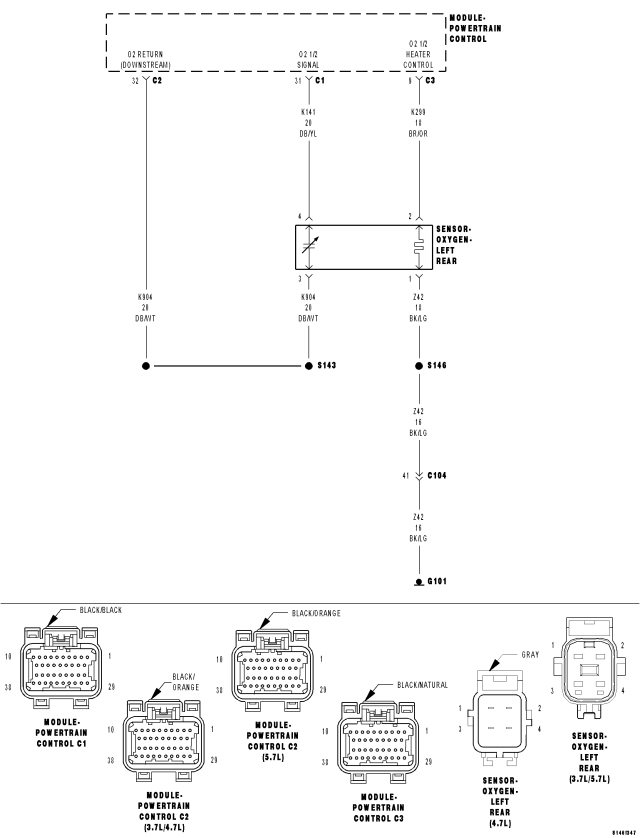
For a complete wiring diagram Refer to Section 8W.

Theory of Operation


This diagnostic provides a continuous check of the O2 heater circuit during operation. The heater circuit is momentarily disabled to allow a resistance measurement to be taken to infer heater temperature. The current delivery to the heater is duty cycled to maintain a specific target temperature. The error from the target temperature is continuously monitored to assess heater performance.

  • When Monitored:

    Engine running and heater duty cycle greater than 0%. Battery voltage greater than 11.0 volts.

  • Set Condition:

    No sensor output is received when the PCM powers up the sensor heater. Two trip fault. Three good trips to turn off the MIL.


Possible Causes
 
(K299) O2 1/2 HEATER CONTROL CIRCUIT OPEN
 
(Z42) O2 HEATER GROUND CIRCUIT OPEN
 
O2 SENSOR HEATER ELEMENT
 
PCM
 


Always perform the Pre-Diagnostic Troubleshooting procedure before proceeding. (Refer to 9 - ENGINE - DIAGNOSIS AND TESTING).



Diagnostic Test

1.O2 SENSOR HEATER OPERATION


NOTE: Wait a minimum of 8 minutes to allow the O2 Sensor to cool down before continuing the test. Allow the O2 Sensor voltage to stabilize between 4.6 and 5.0 volts.






Does the voltage stay above 4.5 volts?

Yes
  • Go To 2


No

2.O2 SENSOR HEATER ELEMENT


NOTE: Allow the O2 sensor to cool down to room temperature.




NOTE: O2 Heater Element resistance values should be measured at 70°F (21.1°C). The resistance value will vary with different temperature values.



Is the resistance of the O2 Sensor Heater Element between 2.0 and 30.0 ohms?

Yes
  • Go To 3


No

3.(K299) O2 1/2 HEATER CONTROL CIRCUIT OPEN




CAUTION: Do not probe the PCM harness connectors. Probing the PCM harness connectors will damage the PCM terminals resulting in poor terminal to pin connection. Install Miller Special Tool #8815 to perform diagnosis.




Is the resistance below 0.5 of an ohm?

Yes
  • Go To 4


No

4.(Z42) O2 1/2 HEATER GROUND CIRCUIT OPEN





Is the resistance below 0.5 of an ohm?

Yes
  • Go To 5


No

5.PCM

NOTE: Before continuing, check the PCM harness connector terminals for corrosion, damage, or terminal push out. Repair as necessary.




Were there any problems found?

Yes


No