P0594-SPEED CONTROL SERVO POWER RELAY CIRCUIT





For a complete wiring diagram Refer to Section 8W.


  • When Monitored:

    With the ignition key on. The speed control switched on.

  • Set Condition:

    The speed control power supply circuit is either open or shorted to ground for more than 2.6 seconds. One Trip Fault. Three good trips to turn off the MIL.


Possible Causes
 
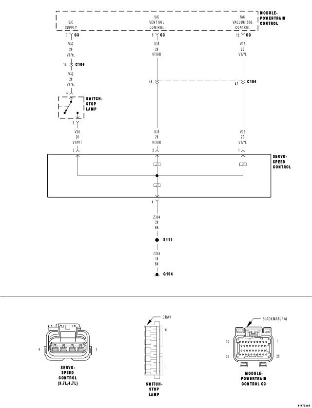
(V32) S/C SUPPLY CIRCUIT OPEN
 
(V32) S/C SUPPLY CIRCUIT SHORTED TO GROUND
 
(V30) S/C BRAKE SWITCH OUTPUT CIRCUIT OPEN
 
(V30) S/C BRAKE SWITCH OUTPUT CIRCUIT SHORTED TO GROUND
 
STOP LAMP SWITCH
 
PCM
 


Always perform the Pre-Diagnostic Troubleshooting procedure before proceeding. (Refer to 9 - ENGINE - DIAGNOSIS AND TESTING).



Diagnostic Test

1.ACTIVE DTC

NOTE: If this code is setting on a vehicle that doesn't have a S/C Servo, flash the correct code into the PCM or the wrong PCM may have previously been installed.





Is the DTC Active at this time?

Yes
  • Go To 2


No

2.(V32) S/C SUPPLY CIRCUIT








Does the test light illuminate brightly?

Yes
  • Go To 3


No
  • Go To 7

3. STOP LAMP SWITCH





Does the resistance change from below 5.0 ohms to an open circuit?

Yes
  • Go To 4


No

4.(V30) S/C BRAKE SWITCH OUTPUT







NOTE: It is necessary to PRESS and HOLD the Speed Control Switch in the ON position while checking for voltage.




Does the test light illuminate brightly?

Yes


No
  • Go To 5

5.(V30) S/C BRAKE SWITCH OUTPUT CIRCUIT OPEN







Is the resistance below 5.0 ohms?

Yes


No
  • Go To 6

6.(V30) S/C BRAKE SWITCH OUTPUT CIRCUIT SHORTED TO GROUND





Is the resistance below 100 ohms?

Yes


No
  • Go To 9

7.(V32) S/C SUPPLY CIRCUIT OPEN





CAUTION: Do not probe the PCM harness connectors. Probing the PCM harness connectors will damage the PCM terminals resulting in poor terminal to pin connection. Install Miller Special Tool #8815 to perform diagnosis.




Is the resistance above 5.0 ohms?

Yes


No
  • Go To 8

8.(V32) S/C SUPPLY CIRCUIT SHORTED TO GROUND





Is the resistance below 100 ohms?

Yes


No
  • Go To 9

9.PCM

NOTE: Before continuing, check the PCM harness connector terminals for corrosion, damage, or terminal push out. Repair as necessary.




Were there any problems found?

Yes


No